| штат: | |
|---|---|
| Количество: | |
WN Flange
SDFL

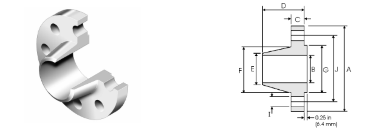
| Номинальный размер | Внешний диаметр | Внутренний диаметр | Высота кольца фланца | Диаметр хаба у основания | Сварная конец OD | Толщина стенки фланца | Герметизация диаметра лица | Выпечка высоты лица | Фланец общая высота | Центральный диаметр круга | Количество отверстий для болтов | Диаметр отверстия болта | |
| DN | NPS | A | B | C | F | E | G | D | J | I | |||
| 15 | 1/2 | 133.4 | 15.7 | 30.2 | 42.9 | 21.3 | 5.6 | 35 | 6.4 | 73.15 | 88.9 | 4 | 22.4 |
| 20 | 3/4 | 139.7 | 20.8 | 31.75 | 50.8 | 26.7 | 5.9 | 42.9 | 6.4 | 79.25 | 95.3 | 4 | 22.4 |
| 25 | 1 | 158.8 | 26.7 | 35.1 | 57.15 | 33.5 | 6.8 | 50.8 | 6.4 | 88.9 | 108 | 4 | 25.4 |
| 32 | 1-1/4 | 184.2 | 35.1 | 38.1 | 73.15 | 42.2 | 7.1 | 63.5 | 6.4 | 95.3 | 130 | 4 | 28.4 |
| 40 | 1-1/2 | 203.2 | 40.9 | 44.5 | 79.25 | 48.3 | 7.4 | 73.15 | 6.4 | 111.3 | 146.1 | 4 | 31.8 |
| 50 | 2 | 235 | 52.6 | 50.8 | 95.3 | 60.45 | 7.9 | 91.9 | 6.4 | 127 | 171.5 | 8 | 28.4 |
| 65 | 2-1/2 | 266.7 | 62.7 | 57.15 | 114.3 | 73.15 | 10.5 | 104.6 | 6.4 | 142.7 | 196.9 | 8 | 31.8 |
| 80 | 3 | 304.8 | 78 | 66.55 | 133.4 | 88.9 | 10.9 | 127 | 6.4 | 168.1 | 228.6 | 8 | 35.1 |
| 100 | 4 | 355.6 | 102.4 | 76.2 | 165.1 | 114.3 | 11.9 | 157.2 | 6.4 | 190.5 | 273.1 | 8 | 41.1 |
| 125 | 5 | 419.1 | 128.3 | 91.9 | 203.2 | 141.2 | 12.9 | 185.7 | 6.4 | 228.6 | 323.9 | 8 | 47.8 |
| 150 | 6 | 482.6 | 154.2 | 108 | 235 | 168.4 | 14.2 | 215.9 | 6.4 | 273.1 | 368.3 | 8 | 53.8 |
| 200 | 8 | 552.5 | 202.7 | 127 | 304.8 | 219.2 | 16.5 | 269.7 | 6.4 | 317.5 | 438.2 | 12 | 53.8 |
| 250 | 10 | 673.1 | 254.5 | 165.1 | 374.7 | 273 | 18.5 | 323.8 | 6.4 | 419.1 | 539.8 | 12 | 66.6 |
| 300 | 12 | 762 | 304.8 | 184.2 | 441.5 | 323.8 | 19 | 381 | 6.4 | 463.6 | 619.3 | 12 | 73.2 |
(1) Процесс сварки
канавки:
отдельный V-Grove с углом 37 ° ± 2,5 °, корневая поверхность 1,6 мм и зазор 3,2 мм.
Метод сварки:
корневая сварка: gtaw (чистота аргона ≥ 99,999%).
Заполнение/задержка: SMAW (E9018 - B9 Electrode).
(2)
Степень затягивания болта: ASTM A193 B16 (хром-молибден-ванадия сталь) или B8M (нержавеющая сталь).
ПРЕДУПРЕЖДЕНИЕ УПРАВЛЕНИЕ ПРЕДОСТАВЛЕНИЯ:
Загрузите гидравлический натяжитель до 75% от силы дохода болта.
Коэффициент крутящего момента k должен быть измерен на месте (стандартный диапазон 0,12 - 0,18).
(3)
Гидростатический тест на тест давления: 38,25 МПа (в 1,5 раза превышает конструктивное давление), удерживайте давление в течение 4 часов.
Испытание на воздушное стяжение: 6,9 МПа азот, обнаружение пузырьков с мыльной водой.

| Номинальный размер | Внешний диаметр | Внутренний диаметр | Высота кольца фланца | Диаметр хаба у основания | Сварная конец OD | Толщина стенки фланца | Герметизация диаметра лица | Выпечка высоты лица | Фланец общая высота | Центральный диаметр круга | Количество отверстий для болтов | Диаметр отверстия болта | |
| DN | NPS | A | B | C | F | E | G | D | J | I | |||
| 15 | 1/2 | 133.4 | 15.7 | 30.2 | 42.9 | 21.3 | 5.6 | 35 | 6.4 | 73.15 | 88.9 | 4 | 22.4 |
| 20 | 3/4 | 139.7 | 20.8 | 31.75 | 50.8 | 26.7 | 5.9 | 42.9 | 6.4 | 79.25 | 95.3 | 4 | 22.4 |
| 25 | 1 | 158.8 | 26.7 | 35.1 | 57.15 | 33.5 | 6.8 | 50.8 | 6.4 | 88.9 | 108 | 4 | 25.4 |
| 32 | 1-1/4 | 184.2 | 35.1 | 38.1 | 73.15 | 42.2 | 7.1 | 63.5 | 6.4 | 95.3 | 130 | 4 | 28.4 |
| 40 | 1-1/2 | 203.2 | 40.9 | 44.5 | 79.25 | 48.3 | 7.4 | 73.15 | 6.4 | 111.3 | 146.1 | 4 | 31.8 |
| 50 | 2 | 235 | 52.6 | 50.8 | 95.3 | 60.45 | 7.9 | 91.9 | 6.4 | 127 | 171.5 | 8 | 28.4 |
| 65 | 2-1/2 | 266.7 | 62.7 | 57.15 | 114.3 | 73.15 | 10.5 | 104.6 | 6.4 | 142.7 | 196.9 | 8 | 31.8 |
| 80 | 3 | 304.8 | 78 | 66.55 | 133.4 | 88.9 | 10.9 | 127 | 6.4 | 168.1 | 228.6 | 8 | 35.1 |
| 100 | 4 | 355.6 | 102.4 | 76.2 | 165.1 | 114.3 | 11.9 | 157.2 | 6.4 | 190.5 | 273.1 | 8 | 41.1 |
| 125 | 5 | 419.1 | 128.3 | 91.9 | 203.2 | 141.2 | 12.9 | 185.7 | 6.4 | 228.6 | 323.9 | 8 | 47.8 |
| 150 | 6 | 482.6 | 154.2 | 108 | 235 | 168.4 | 14.2 | 215.9 | 6.4 | 273.1 | 368.3 | 8 | 53.8 |
| 200 | 8 | 552.5 | 202.7 | 127 | 304.8 | 219.2 | 16.5 | 269.7 | 6.4 | 317.5 | 438.2 | 12 | 53.8 |
| 250 | 10 | 673.1 | 254.5 | 165.1 | 374.7 | 273 | 18.5 | 323.8 | 6.4 | 419.1 | 539.8 | 12 | 66.6 |
| 300 | 12 | 762 | 304.8 | 184.2 | 441.5 | 323.8 | 19 | 381 | 6.4 | 463.6 | 619.3 | 12 | 73.2 |
(1) Процесс сварки
канавки:
отдельный V-Grove с углом 37 ° ± 2,5 °, корневая поверхность 1,6 мм и зазор 3,2 мм.
Метод сварки:
корневая сварка: gtaw (чистота аргона ≥ 99,999%).
Заполнение/задержка: SMAW (E9018 - B9 Electrode).
(2)
Степень затягивания болта: ASTM A193 B16 (хром-молибден-ванадия сталь) или B8M (нержавеющая сталь).
ПРЕДУПРЕЖДЕНИЕ УПРАВЛЕНИЕ ПРЕДОСТАВЛЕНИЯ:
Загрузите гидравлический натяжитель до 75% от силы дохода болта.
Коэффициент крутящего момента k должен быть измерен на месте (стандартный диапазон 0,12 - 0,18).
(3)
Гидростатический тест на тест давления: 38,25 МПа (в 1,5 раза превышает конструктивное давление), удерживайте давление в течение 4 часов.
Испытание на воздушное стяжение: 6,9 МПа азот, обнаружение пузырьков с мыльной водой.